Si vende casa indipendente con negozio di circa 232 mq a Fermignano, località Ca’ L’Agostina in zona residenziale e ben collegata anche con i mezzi pubblici. Dalla posizione dell’abitazione si raggiunge in pochi minuti di macchina Urbino e l’Alta Valle del Matauro (Urbania, Sant’Angelo in Vado etc… ).
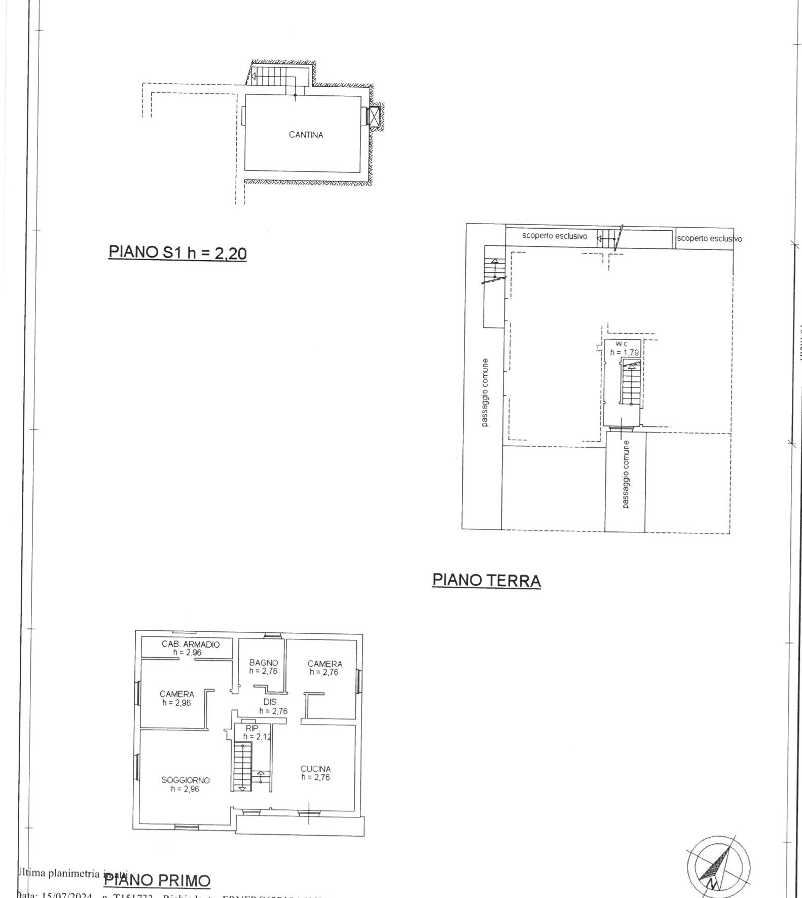
La proprietà immobiliare in vendita a Fermignano è disposta su due livelli di piano e all’ingresso è presente anche un piccolo scoperto a giardino.
A piano terra veniamo accolti da una grande e luminosa zona giorno composta da: cucina abitabile, un’ampia stanza jolly e bagnetto di servizio nel sottoscala.
Una scala collega questo piano al primo in cui è presente:
- Soggiorno luminoso;
- Cucina abitabile con camino;
- Bagno grande e finestrato;
- 2 camere matrimoniali.
Al piano terra, adiacente alla casa indipendente appena descritta, è inoltre disponibile e incluso nel prezzo un negozio molto luminoso, attualmente affittato.
In particolare, quest’ultimo ambiente della proprietà si presta perfettamente per essere utilizzato per attività commerciali o studio professionale.
Gode di buona visibilità in quanto è collocato su una strada frequentata . Completano la proprietà anche un ampio e funzionale locale deposito situato sotto il negozio e una cantina.
Di fronte all’immobile è presente un comodo parcheggio gratuito.
L’immobile è stato già parzialmente ristrutturato nel 2005, sono stati svolti lavori di:
- Rifacimento copertura;
- Pavimentazione giardinetto;
- Rifacimento facciate;
- Rifacimento infissi con doppi vetri;
- Rifacimento camino e condotti di areazione nelle diverse stanze.
L’arredamento è incluso nel prezzo.
Ape in corso di redazione.
Video casa indipendente in vendita
Planimetria piano interrato e terra
Planimetria piano terra abitazione
Planimetria piano terra negozio
Planimetria piano terra e primo





















































