A Fossombrone si vende una bella villa indipendente in pietra di 503 mq. con 1000 mq di giardino privato.
La casa in vendita è sviluppata su più livelli in particolare:
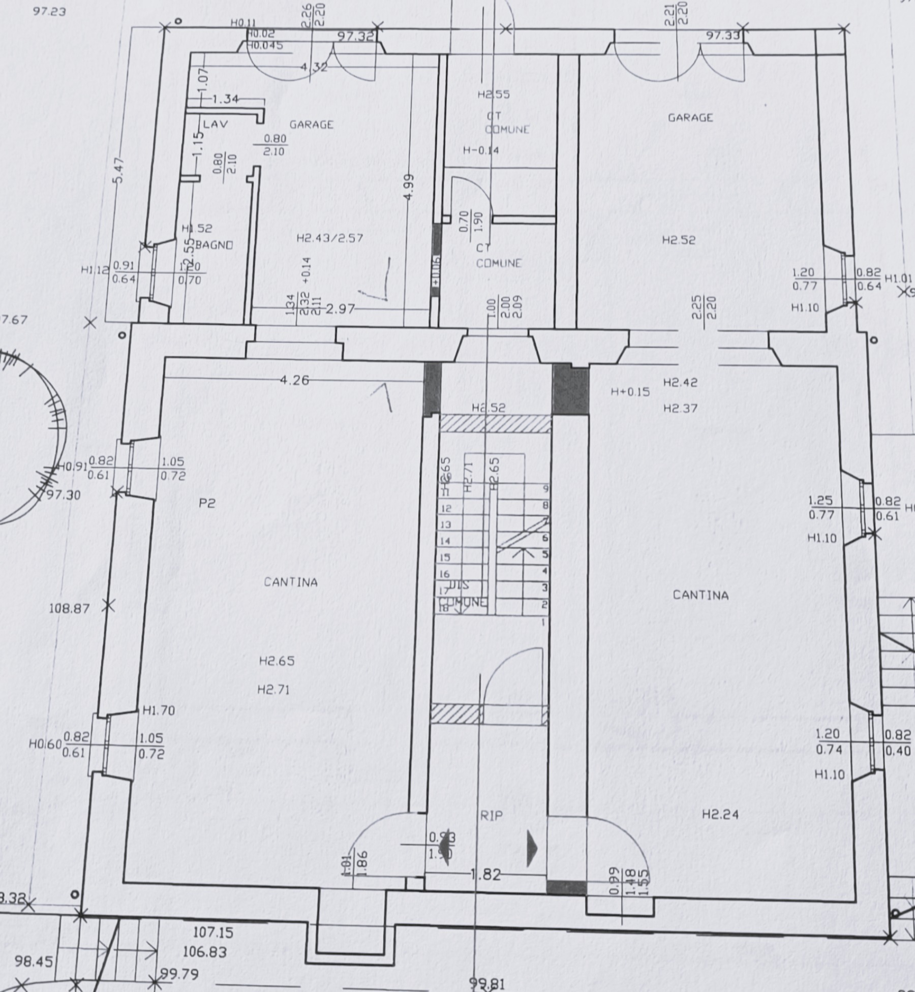
- Primo piano sottostrada di 90 mq adibito a garage e cantina;
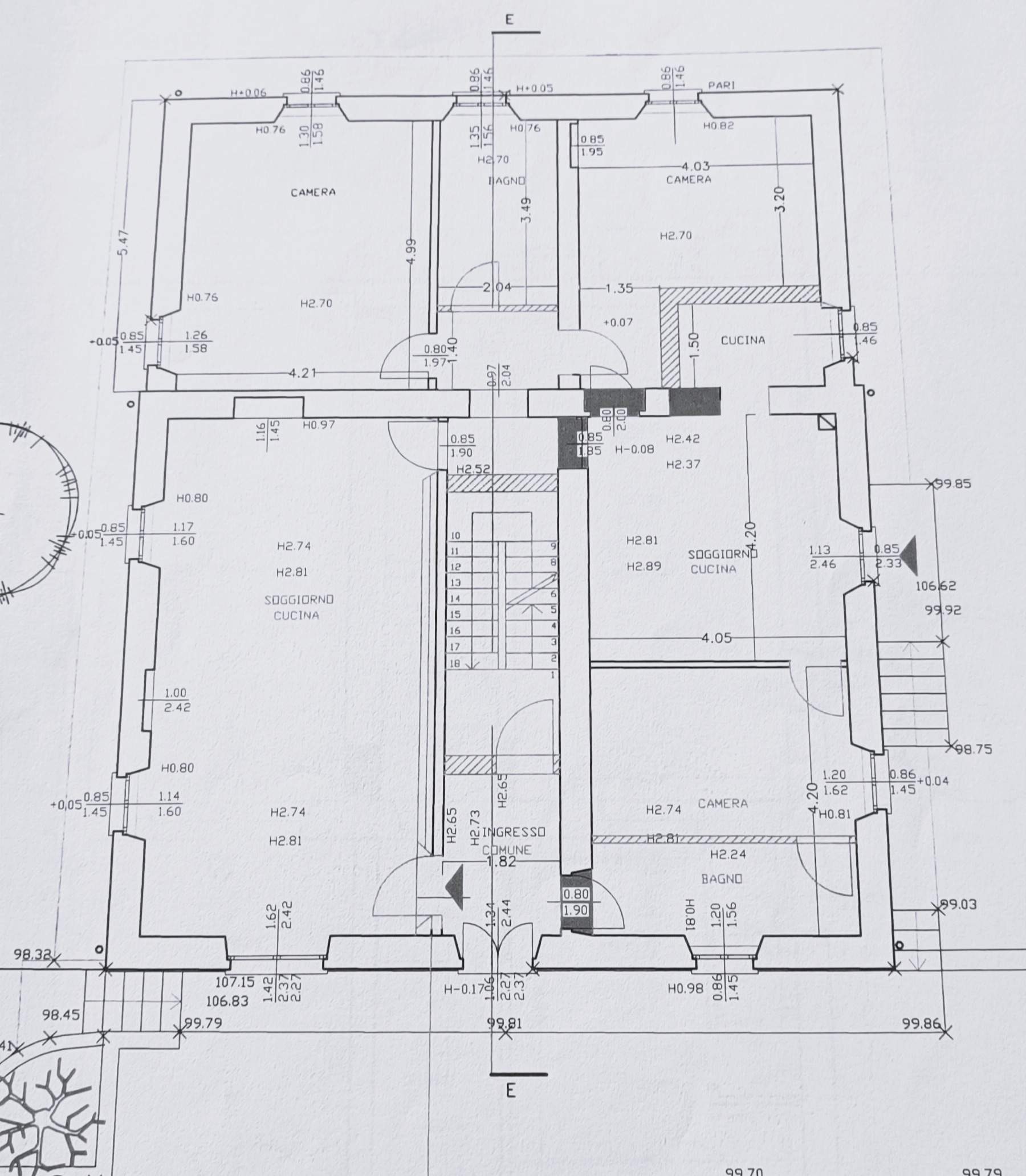
- Piano terra di ben 180 mq;
- Piano primo di ben 180 mq;
- Piano secondo di 32,50 mq;
- Terrazza panoramica di 21 mq.
La zona giorno del piano terra è composto da un grande soggiorno con tripla esposizione, un altro ambiente comunicante con cucina funzionale e finestrata. Inoltre, sempre in quest’area si ha una camera e un bagno. Nella zona notte si trovano due camere, una delle quali con doppia esposizione e un bagno finestrato.
Grazie ad una scala interna si arriva al piano primo dove sono presenti:
- Due camere di cui una con doppia esposizione;
- Cucina;
- Soggiorno con doppio balcone;
- Pranzo con balcone;
- Bagno.
In questo livello tutti gli ambienti della zona giorno sono divisi.
Il secondo e ultimo piano è un sottotetto con una suggestiva terrazza panoramica sulle colline marchigiane.
Video casa indipendente esterno
Planimetria piano secondo – terrazza panoramica
Ape in corso di redazione.











































































