Villa indipendente con 200 mq. di scoperto a Peglio (PU)- Rif.CR306

280.000 

Peglio – Pesaro Urbino

Descrizione

In vendita a Peglio provincia di Pesaro Urbino, proponiamo una casa indipendente su tre livelli molto ben tenuta con scoperto di 200 mq che percorre i tre lati della casa in vendita nelle Marche, Peglio: il fronte è a giardino, il retro è pavimentato con possibilità di ricavarne una piscina.

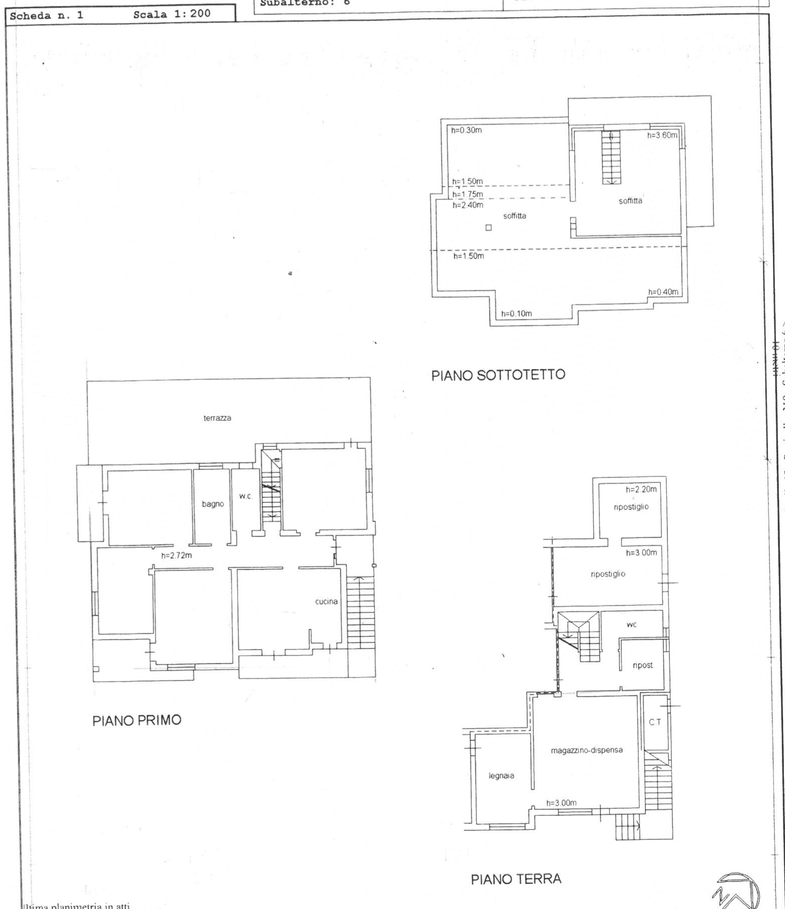
Al piano terra troviamo: legnaia, magazzino (che possono essere usati come garage doppio) W. C. di servizio, 3 capienti ripostigli per un totale di 178 mq.

Il piano primo è di una superficie lorda di 128 mq. e lo si raggiunge grazie alla scala esterna ed interna. In questo livello è compreso:

– Ingresso;
– Cucina abitabile con doppia esposizione e servita da terrazzo panoramico con vista sull’Alta Valle del Metauro;
Soggiorno separato dalla cucina con accesso alla soffitta;
– Piccolo ripostiglio/passaggio con accesso allo scoperto pavimentato sul retro.

Nella zona notte sono presenti:
– 2 camere matrimoniali con terrazzo;
– 1 camera singola;
– Bagno grande e finestrato con doccia.

Sono stati installati: condizionatore e zanzariere.

Considerati gli enormi spazi disponibili, si potrebbe ricavare facilmente un secondo appartamento al piano terra trasformando la villetta in una bifamiliare, oppure si potrebbe realizzare un ufficio, negozio o altro locale pluriuso.

Al piano secondo è disponibile una soffitta allo stato grezzo di circa 30mq.

La villetta in vendita a Peglio (PU) è particolarmente adatta alle Famiglie numerose o a due famiglie e amici a quattro zampe che possono giocare in tutta tranquillità all’aria aperta.

Classe energetica E 221,61 kWh/mq.

Planimetria abitazione e garage

Scegli la casa che fa per te.

Informazioni aggiuntive

Camere da letto

3 camere da letto

Bagni

2

Giardino

Garage

Si

Richiedi Visita o Informazioni

Torna in alto