Casale da ristrutturare in vendita nelle Marche, Urbino- Rif. CR310

78.000 

Urbino – Ottimo prezzo

Descrizione

È in vendita un casale rurale nelle Marche in Urbino, località San Marino di Urbino.

L’immobile che si vende è a pochi chilometri da Urbino e meno di 30 minuti di macchina da Fano, Città di mare e dalla Superstrada.

L’abitazione è disposto su due livelli di piano per una superficie commerciale di 200mq. e ricorda quelle belle sensazioni retrò come le domeniche a pranzo con tutta la Famiglia.

Al piano terra si trovano:
– Una camera matrimoniale con bagno privato finestrato;
– Sala da pranzo/soggiorno;
– Cucina abitabile;
– Lavanderia;
– Loggia con accesso allo scoperto retro;
– Grotta tipica del territorio;
– Box.

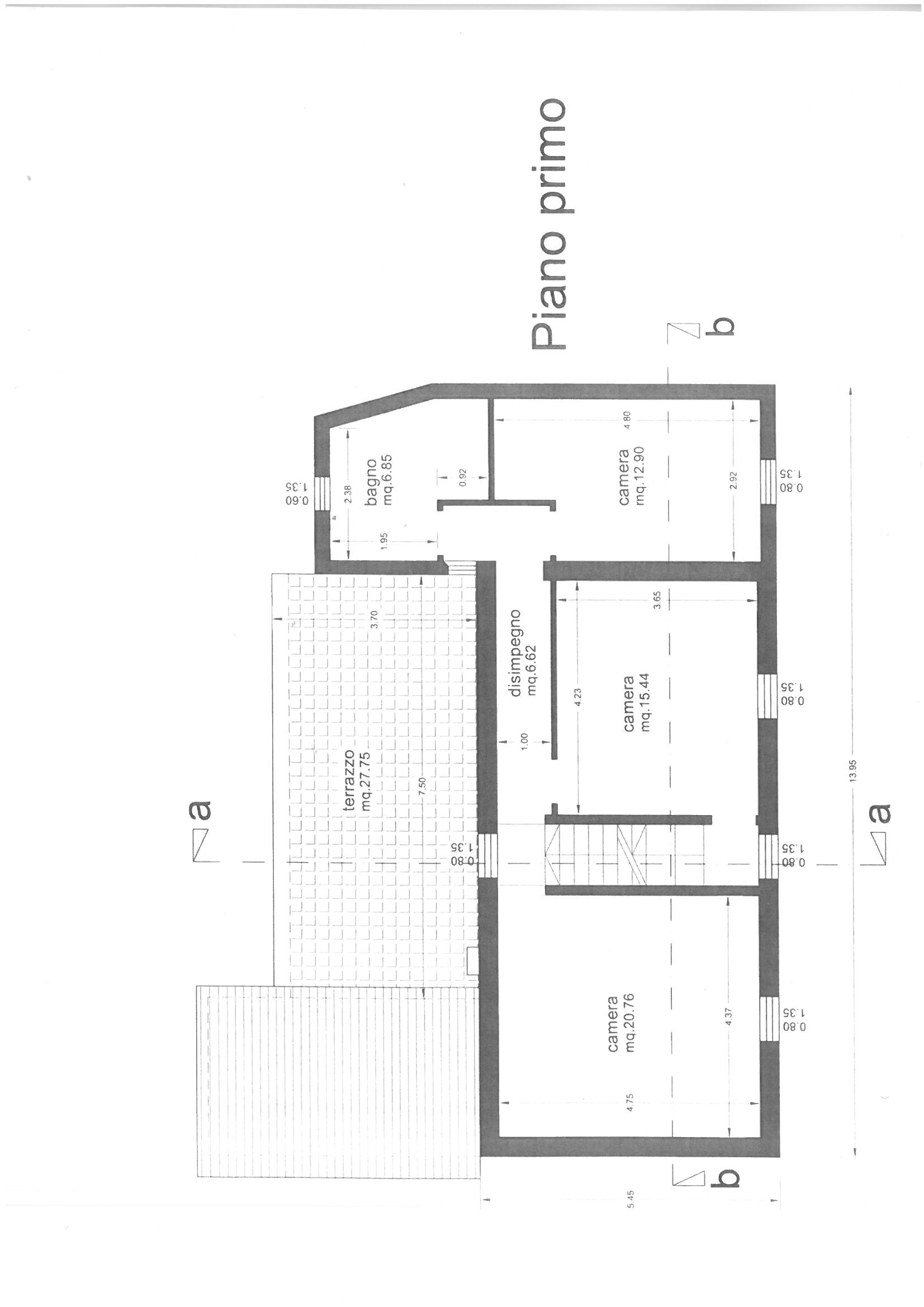
Salendo le scale si arriva al piano primo dove sono presenti:
– Due camere matrimoniali (una con ripostiglio);
– Una camera;
– Bagno finestrato con vasca.

Nella proprietà è incluso un box con altra piccola grotta, giardino esclusivo pari a 4500 mq, pozzo.
Utenze presenti, riscaldamento a legna/gasaolio, rete idrica comunale (Comune di Urbino).

classe energetica  F  302,10 kw h/mq.

Prezzo trattabile.

Video casale rurale

Planimetria piano terra

Planimetria piano primo

Planimetria terreno

Informazioni aggiuntive

Città

Urbino

Classe Energetica

Classe energetica F – 302,10 kw h/mq.

Richiedi Visita o Informazioni

Torna in alto