Oggi ti proponiamo un moderno appartamento al piano terra di 65 mq lordi ca. a Fermignano con ampio giardino e garage di 24, recente costruzione e antisismico.
La casa al piano terra, oltre ad essere molto luminosa è dotata di ingresso autonomo ed è perfetta per chi cerca comfort, indipendenza e tranquillità.
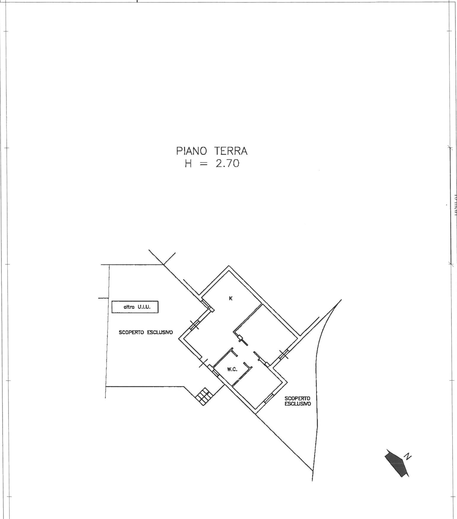
L’immobile in vendita a Fermignano è particolarmente comodo per raggiungere il nuovo Campus Scientifico E. Mattei dell’Università di Urbino Carlo Bo e si presenta così:
– Ingresso;
– Soggiorno e cucina finestrata;
– Camera matrimoniale con piccolo scoperto;
– Camera jolly;
– Bagno finestrato.
La casa è in ottime condizioni e inoltre ha:
– Doppio Climatizzatore;
– Portone blindato;
Una cosa fondamentale da sapere: si può avere l’accollo del mutuo di 53.000€ per 14 anni con rata mensile di 330€ al tasso dell’1%.
Ape: Classe energetica E – 162,09 kwh/m2 anno

































